六通換向閥的工作原理和結構特點

2009-06-03 周湘君 沈陽閥門研究所

        在石油、化工、礦山和冶金等行業中,六通換向閥是一種重要的流體換向設備。該閥安裝在稀油潤滑系統輸送潤滑油的管道中。通過變換密封組件在閥體中的相對位置,使閥體各通道連通或斷開,從而控制流體的換向和啟停。

六通換向閥的性能參數

        公稱通徑(mm)  50~150

        適用溫度( ℃)  室溫~80

        公稱壓力(MPa)  1.0

        適用介質 潤滑油

        連接形式 法蘭

        強度試驗壓力(MPa)  1.5

        密封試驗壓力(MPa)  1.1

        耐壓試驗溫度( ℃)  常溫

六通換向閥的工作原理和結構特點

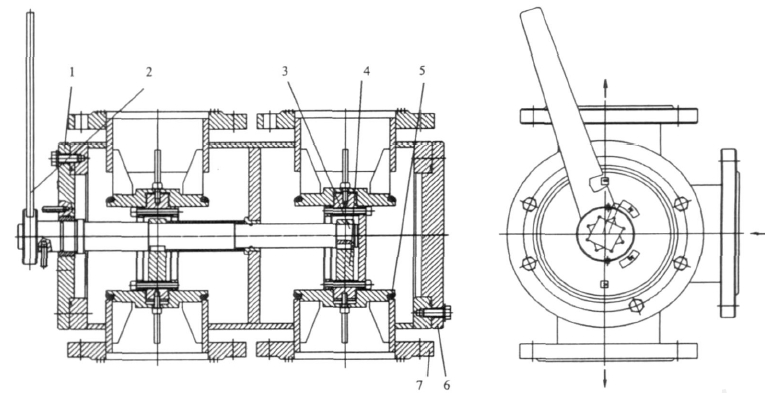
        六通換向閥主要由閥體、密封組件、凸輪、閥桿、手柄和閥蓋等零部件組成(圖1) 。閥門由手柄驅動,通過手柄帶動閥桿與凸輪旋轉,凸輪具有定位驅動與鎖定密封組件的開啟與關閉功能。手柄逆時針旋轉,兩組密封組件分別在凸輪的作用下關閉下端的兩個通道,上端的兩個通道分別與管道裝置的進口相通。反之,上端的兩個通道關閉,下端兩個通道與管道裝置的進口相通,實現了不停車換向。

六通換向閥 

1上閥蓋 2手柄 3閥桿 4凸輪 5密封組件 6閥蓋 7閥體

圖1 六通換向閥

        (1)六通閥的閥體由隔板分成兩腔,每腔都有3個通道,中間為進油口,兩端為出油口。閥體為碳鋼板焊結構,體積小,質量輕,結構緊湊,提高了材料的利用率,縮短了生產周期,降低了成本。密封面堆焊不銹鋼,防銹耐腐蝕,密封面經過精加工后拋光研磨,表面粗糙度Ra ≤0.8μm。

        (2)六通閥有兩組密封組件。每組密封組件(圖2)由閥瓣、密封圈、調整塊、調節螺釘、夾板和螺栓組成。閥瓣為碳鋼板焊件,設有加強筋,即增加閥瓣強度又起導向作用,保證每組閥瓣間的同軸度。閥瓣上鑲嵌聚氨脂橡膠圈,該材料具有耐油、耐磨損、性能穩定、密封良好和使用壽命長的特點。在凸輪的作用下,密封圈的球面與閥體密封面相接觸產生擠壓彈性變形,達到密封效果。調整塊和調節螺釘在兩組密封組件不能同步到位時可起調整作用,確保各通道密封性能同步到位。

六通換向閥的密封組件 

1夾板 2螺栓 3調整塊 4閥瓣 5密封圈 6調整螺釘

圖2 密封組件

        (3)閥桿與閥體隔板和上閥蓋間的軸向密封采用O形圈。

        (4)閥體隔板及上閥蓋軸孔部位鑲有銅套,可減小與O形圈間的摩擦力矩,密封組件開啟與關閉靈活,操作力矩小。

        (5)上閥蓋設有指示牌及限位螺釘,閥桿上安裝指針,明確指示各通道的接通狀況,易于操作。

相關文章閱讀:

六通換向閥的工作原理和結構特點

六通換向閥的主要參數設計計算