隔膜閥按結構形式的分類

2020-05-03 真空技術網整理 閥門手冊

  隔膜閥的種類很多,而且有多種分類方法,本文主要按結構形式對隔膜閥進行分類介紹。

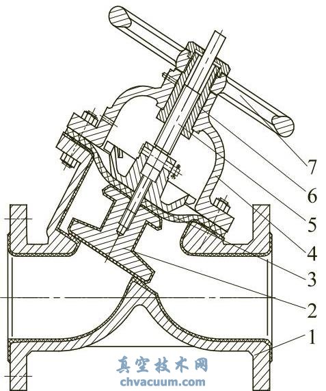
1、堰式(屋脊式)隔膜閥

  閥體流道中以屋脊形結構與隔膜構成密封副的隔膜閥稱為堰式(屋脊式)隔膜閥。

  堰式隔膜閥(圖1)的導流堰作為閥體的一部分,相當于閥座,隔膜壓在上面以截斷介質流動。這種類型的隔膜閥一般尺寸較大。凸起的導流堰減小了隔膜閥從完全開啟至完全關閉的行程,從而減小了隔膜的應力和應變。關閉時,帶有隔膜的閥瓣下移,使其與閥體的堰(脊背)密封,達到切斷流體的要求。

屋脊式隔膜閥

圖1 屋脊式隔膜閥

1—閥體;2—隔膜;3—閥瓣;4—閥蓋; 5—閥桿螺母;6—閥桿;7—手輪

  行程短,流阻系數較大(相對直通式),對隔膜撓性要求較低,無淤積介質的死角,是隔膜閥中應用最廣泛的一種,分無襯里及襯塑、襯膠、襯搪瓷等,具有一定的節流特性,耐蝕性和抗顆粒介質好,密封可靠。

  堰式(屋脊式)隔膜閥在關閉與全啟位置間的行程設計較短。這樣隔膜的撓性應力較小,因而隔膜的壽命較長。因行程短故可允許使用PTFE這種材料制成的隔膜,對于較長的行程來說,PT-FE的撓性是不夠的。不過在使用PTFE時,隔膜的背后必須襯以橡膠,以保證在緊密關閉時所必需的彈性。

  標準的堰式隔膜閥也可使用在真空中。不過使用在高真空時,隔膜必須特殊增強。

  由于隔膜面積大于流體通道的截面積,流體會對拱起的隔膜產生一個相對大的壓力,這就使隔膜閥的關閉力矩很大,因而就限制了隔膜閥尺寸系列的發展。例如圖1中所示,典型的堰式隔膜閥的尺寸最大為DN350(14in)。如圖2中所示的較大尺寸的堰式隔膜閥裝有雙隔膜,最大尺寸為DN500(20in)。

適用于大口徑的雙閥蓋堰式隔膜閥

圖2 適用于大口徑的雙閥蓋堰式隔膜閥

1,9—閥桿;2,8—閥蓋;3,7—閥瓣;4,6—隔膜;5—閥體

  常規類型的堰式隔膜閥同樣可以用在自動排放的水平管路中。可以將閥桿從水平位置抬升15°~20°,使水平管路有一些落差,這樣可以實現管路的自動排放。

  圖3中所示的閥門為英國桑德斯的屋脊式隔膜閥,閥桿被護罩保護在內部,這種結構能夠保護閥桿外螺紋免受灰塵及外部腐蝕的作用。當閥桿螺紋在黃色的開度指示器內移動時,手輪帶動覆蓋閥桿螺紋的護罩運動。反過來,黃色的開度指示器通過潤滑油腔來潤滑閥桿螺紋以延長其使用壽命。

  如果隔膜破裂的話,需要在閥桿上裝上O形密封圈緊貼著閥蓋,這樣能夠防止流體溢出。

帶有潤滑功能及升降指示器的屋脊式隔膜閥

圖3 帶有潤滑功能及升降指示器的屋脊式隔膜閥

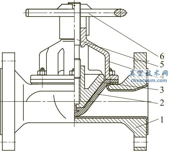
2、直流式隔膜閥

  直流式隔膜閥(圖4)具有截止閥和屋脊式隔膜閥的特點,閥座密封采用包覆非金屬材料的金屬閥瓣,具有較高的承載能力和密封性。另有隔膜作為中法蘭密封和閥桿填料密封,又作為隔離閥體和閥蓋的屏障,密封可靠,閥體流道呈線形,流通能力好,流阻系數小,閥體內腔可襯塑、襯膠。

直流式隔膜閥

圖4 直流式隔膜閥

1—閥體;2—閥瓣;3—隔膜;4—閥蓋; 5—閥桿;6—閥桿螺母;7—手輪

3、直通式隔膜閥

  直通式隔膜閥(圖5)其流體的通道近似直線,流阻小,行程較長(相對于堰式)。對隔膜撓性要求較高,切斷性能和流通性能均佳,耐腐蝕,能包容顆粒狀介質,內腔分無襯里及有襯塑、襯膠、襯搪瓷等。

直通式隔膜閥

圖5 直通式隔膜閥

1—閥體;2—隔膜;3—閥瓣; 4—閥蓋;5—閥桿;6—手輪

  當直通式閥門開啟時,它的隔膜升高,使任意方向都暢流;當閥門關閉時,隔膜密封緊密,可以保證管線中有沙礫或纖維時也能絕對閉合。

  與堰式隔膜閥相比,直通式隔膜閥需要隔膜具有更多的彈性。因此,這種結構使隔膜選擇彈性材料的范圍受到了限制。

  由于直通式隔膜閥隔膜是高彈性材料且面積比較大,因此高真空工況下隔膜容易膨脹并且進入流道。隔膜的膨脹程度與制造有關,膨脹會引起閥門流道面積減小或隔膜塌陷。為避免后者情況出現,閥蓋必須向上移動來平衡隔膜上的壓力。當在高真空中使用該種閥門時,需向生產制造商咨詢。

  直通式隔膜閥同樣有全通徑與縮徑流道之分。對于縮徑流道的閥門,需要安裝小一個規格的閥蓋組件。例如,公稱尺寸為DN50(NPS2)的縮徑流道閥門應該安裝公稱尺寸為DN40(NPS1½)的閥蓋。其閥蓋結構與堰式隔膜閥相似。典型的直通式隔膜閥的尺寸系列已經達到公稱尺寸DN350(NPS14)。

  全流道式閥門多用于飲料工業。它可以使用蒸汽或燒堿用球刷清洗(圖6),而無須打開或從管線上拆除閥門。

全流道式隔膜閥

圖6 全流道式隔膜閥(球刷清潔器通過情形)

4、截止式隔膜閥

  截止式隔膜閥(圖7)的閥體通道及密封面結構形式與截止閥相似,閥瓣采用金屬包覆非金屬材料的隔膜作為隔離閥體和閥蓋的屏障。旋轉手輪使閥桿升降,通過閥瓣將隔膜壓在閥體密封面上達到密閉貼合,而使閥門啟閉。

截止式隔膜閥

圖7 截止式隔膜閥

1—閥體;2—隔膜;3—閥瓣;4—閥蓋; 5—閥桿;6—閥桿螺母;7—手輪

  截止式隔膜閥的密封性好,但流動阻力較屋脊式隔膜閥大,具有較高的承載能力和密封性及節流特性,可用于低真空(小于或等于101325Pa)。

5、角式隔膜閥

  角式隔膜閥(圖8)的入口和出口成90°角,閥瓣下有隔膜作為隔離閥體和閥蓋的屏障,切斷性能和流通能力均佳,密封可靠,流通能力好,流阻小,無淤積介質的死角。

角式隔膜閥

圖8 角式隔膜閥

1—閥體;2—隔膜;3—閥瓣;4—閥蓋; 5—閥桿螺母;6—閥桿;7—手輪