自平衡角式截止閥的設計和計算

2013-11-02 胡旭 沈陽盛世高中壓閥門有限公司

  介紹了自平衡角式截止閥的工作原理及材料選用,提供了一次薄膜應力極限計算公式和強度及其性能試驗。

1、概述

  在合成氨生產系統和制冷系統中應用的角式截止閥,開啟高度小,密封面摩擦力小,制造工藝好,維修方便。由于截止閥屬于強制密封式閥門,所以在閥門關閉時,必須向閥瓣施加壓力,以強制密封面不泄漏。為了使閥門開關更省力,設計了自平衡角式截止閥。

2、技術參數

  公稱尺寸DN65;公稱壓力PN450;工作介質空氣、氮氣、氫氣、氨氣、氦氣;工作溫度-40~50℃;連接方式法蘭連接;驅動裝置手輪。

3、工作原理

  角式截止閥的介質流向為低進高出,即介質由閥瓣下方進入閥門。在此工況條件下,開啟閥門需要克服的阻力是閥桿和填料的摩擦力,關閉閥門需要克服的阻力是閥桿和填料的摩擦力與由介質的壓力所產生的推力。由于關閉閥門的力比開啟閥門的大,所以按照關閉閥門力設計的閥桿直徑較大(否則會發生閥桿頂彎的故障),因此增大了閥門體積和質量。經過分析,將閥瓣和閥桿端部設置成壓力自平衡結構(圖1)。

  采用自平衡結構后,閥門關閉時,介質通過閥瓣和閥桿的壓力自平衡孔進入閥瓣上腔,減小了介質在閥瓣兩側的壓力差或流量差,用以調節壓力的相對平衡。閥門開啟時,介質再由壓力自平衡孔返回閥體內部,減小了由介質壓力所產生的推力,使開關更省力。

4、材料選用

  自平衡角式截止閥主要由閥體、閥瓣、端法蘭、閥蓋、閥桿和壓蓋等組成(表1)。

  閥體、法蘭和閥瓣等零部件材料選用奧氏體不銹鋼0Cr17Ni12Mo2。在奧氏體不銹鋼中,Mo元素可以促進強化相的產生,有利于材料強度的提高,Mo的耐蝕性能顯著,特別是和Cr相互作用的效果更明顯,可以增加閥門的耐蝕性能。

  閥瓣蓋和閥桿采用沉淀硬化不銹鋼0Cr17Ni4Cu4Nb,此材料對大氣及稀釋酸或鹽具有良好的抗腐蝕能力。0Cr17Ni4Cu4Nb經過固溶和時效熱處理后,可以提升材料的機械性能,從而獲得合適的強度和硬度。

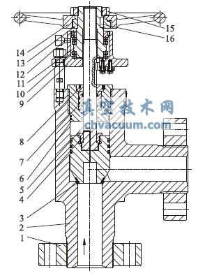
自平衡角式截止閥

1.法蘭 2.閥體 3.閥瓣 4.閥瓣蓋 5.閥桿 6.閥蓋 7.閥桿座 8.填料壓蓋 9.軸承座 10.軸承 11.閥桿螺母 12.油杯 13.撞擊塊 14.撞擊手輪 15.鎖緊螺母 16.鍵

圖1 自平衡角式截止閥

5、設計計算

  自平衡角式截止閥按照GB/T 12233-2006、GB/T 12235-2007和JB/T 53174-94設計,并根據標準要求進行閥體壁厚、閥桿強度、閥體與閥蓋連接螺栓強度的校核及一次薄膜應力極限分析,分析結果達到設計要求。

  應力分析遵循RCC-MB3552.1,一次薄膜應力基本上是由內壓產生的。在內壓作用下,閥體的最高應力是在閥頸與閥體端部交接處的拐角區,其特點是有一個環向拉應力垂直于閥頸和閥體端部中心線的平面(圖2中面積Am)。

表1 主要零部件材料

主要零部件材料

6、試驗

  6.1、強度試驗

  封閉整個承壓殼體,使閥門處于部分開啟狀態,給體腔內充滿水,將試驗壓力升至67.5MPa,保壓5min,承壓殼體(包括閥體與閥蓋螺紋連接處和填料處)無滲漏、破裂及永久性變形。

  6.2、性能試驗

  (1)密封性能試驗

  將被測角式截止閥安裝在試驗系統中(圖3)。

閥門性能試驗系統

F.被測閥 F1、F3.充氣閥門 F2、F4.放氣閥門 P.壓力表

圖3 閥門性能試驗系統

  關閉角式截止閥F、充氣閥F3和放氣閥F4,打開充氣閥F1和放氣閥F2,緩慢充入氮氣,壓力達到45MPa,保壓5min。從放氣閥F2處觀察泄漏情況,其泄漏率<12個氣泡/min。

  關閉角式截止閥F、充氣閥F1和放氣閥F2,打開充氣閥F3和放氣閥F4,緩慢充入氮氣,壓力達到45MPa,保壓5min,從放氣閥F4處觀察泄漏情況,其泄漏率不高于12個氣泡/min。

  (2)動作性能試驗

  將被測角式截止閥安裝在試驗系統中。關閉放氣閥F2和F4及充氣閥F3,打開充氣閥F1和被測角式截止閥F,緩慢充入氮氣,使壓力達到45MPa,手動操作開關閥門,閥門動作靈活,無卡阻。

7、結語

  角式截止閥采用自平衡結構,減少了閥門制造材料,減輕了閥門質量,減小了閥門安裝空間。自平衡角式截止閥經用戶使用,開關省力,操作方便,性能良好。