同軸式大口徑蝶閥加高裝置

2013-07-26 黑松燦 鄭州市鄭蝶閥門有限公司

  介紹了一種安全可靠、操作方便的同軸式大口徑蝶閥加高裝置,采用有效措施減少加長桿的扭轉變形,保證蝶板啟閉位置和驅動裝置指示位置的一致性。該產品已獲國家專利( 專利號:ZL201120301003.0) 。

1、概述

  在自來水廠及其他輸水系統,經常出現閥門井內驅動裝置被水淹沒和電動蝶閥電機燒壞的現象,為了解決這些問題,真空技術網(http://www.hzwlsy.com/)設計出一種加高裝置,可以將驅動裝置移出閥門井外( 圖1) ,安裝調試維修方便。

2、工作原理

  加高裝置有臥式和立式兩種安裝方式。臥式安裝是加高桿部分連接在驅動裝置上或減速后的操作手輪軸上。通過驅動裝置減速,降低輸出扭矩,再與加長桿連接。即以閥門- 驅動裝置- 加長桿的順序連接,加高桿承載扭矩和變形量小。立式安裝是加高桿部分連接在閥門的閥軸輸入端,即閥門- 加高桿- 驅動裝置順序連接。當加長桿用于10m 以上且為大口徑蝶閥上時,啟閉力矩和扭轉變形很大,從而造成蝶板關閉位置與驅動裝置指示位置誤差較大,嚴重時蝶板無法完全關閉。為此設計了一種同軸式大口徑蝶閥加高裝置,解決了問題( 同軸式是指驅動裝置軸線與加高裝置軸線同軸,加高裝置軸線與閥門軸線同軸) 。

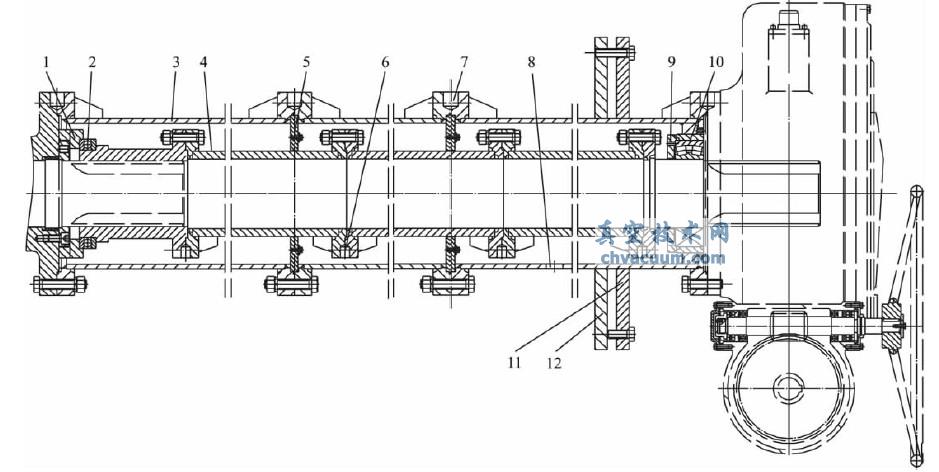
  同軸式大口徑蝶閥加高裝置( 圖2) 由加長支架、加長閥軸、調整盤、底板、軸承架、軸承、防松銷等幾部分組成。轉動驅動裝置上的手輪,通過驅動裝置減速輸出,帶動加高桿上的加長閥軸旋轉,從而帶動閥門的上閥軸轉動,實現閥門的啟閉。

同軸式大口徑蝶閥加高裝置

1.驅動裝置 2.調整盤 3.底板 4.校正盤 5.加長閥軸 6.加長支架 7.閥門井 8.閥門部分

圖1 加長支架安裝

3、結構特點

  ①加長支架及加長閥軸在高度方向上分成多段,各段之間用螺栓連接,便于安裝和運輸。

  ②由于發貨前閥門需拆卸解體,到現場進行二次安裝,加長支架及加長閥軸各段連接處配打防松銷,便于保證達到原來的裝配位置。

  ③加長支架各段之間設計有校正盤,便于校正各段加長閥軸之間的同心度。

  ④下部裝有推力軸承,減少加長閥軸及相關零件自身重力產生的摩擦阻力矩,閥門開啟輕便靈活。

  ⑤上端裝有調心球軸承,調整上下閥軸安裝的同心度,便于安裝驅動裝置。

  ⑥加長支架上設有排水孔,防止閥門的上閥軸處漏水進入加長支架內,如果內部存水達到一定高度時,便從排水孔排出,避免浸入驅動裝置。

同軸式大口徑蝶閥加高裝置

1.推力軸承架 2.推力軸承 3.加長支架 4.加長閥軸 5.校正盤 6.內防松銷 7.外防松銷 8.排水孔 9.調心軸承架 10.調節軸承 11.底板 12.調整盤

圖2 同軸式大口徑蝶閥加高裝置

  ⑦加長支架上設有底板和調整盤,把調整盤焊在外管上,底板焊在井蓋上,通過調整螺栓將外管調整到合適位置,避免外管的重量直接作用在閥體上。

4、結語

  DN2 000-PN10 立式加高蝶閥( 閥門以外加高桿長度10. 4m) 經現場使用運行良好,已獲得實用新型專利證書。

參考文獻

  〔1〕徐灝.機械設計手冊〔M〕.北京:機械工業出版社,1991.

  〔2〕楊源泉.閥門設計手冊〔M〕.北京:機械工業出版社,1992.