蝶閥加工及立式裝配研究
一、前言
水輪機組進水管道上一般安裝進口閥門,作為水輪機組的啟閉機構,是水輪機很重要的輔助設備。進口閥門有四個作用:①作為事故停機裝置。②在停機檢修水輪機時,不需要放掉壓力管道內的壓力水,就可以安全地進行檢修。③在較長時間停機情況下,可以減少導葉縫隙漏水。④分叉管道供水的電站,每臺水輪機上的進口閥門,可以使一臺機組的停機或檢修,不影響其他機組的運行。水輪機行業目前常用的進口閥門有蝶閥、球閥、針閥、閘閥和筒閥。蝶閥是中、低水頭,大、中型水輪機常用的一種進口閥,比其他形式的進口閥門外形尺寸小,重量輕,結構簡單,操作方便。
二、研究內容
1)蝶閥閥體加工工藝。
2)活門加工工藝。
3)通用水壓工具的提制及水壓試驗。
4)立式裝配及操作試驗。
三、研究方法
1、蝶閥閥體加工工藝的研究
閥體是蝶閥的主要部件,通過水流,承受水壓力;支持蝶閥的全部部件,承受操作力和操作力矩,有足夠的剛性。一般采用鑄焊結構。加工難點:
(1)如何保證閥體兩端軸孔的同軸度
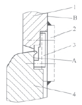
蝶閥閥軸軸孔是蝶閥上最重要的配合部位,閥軸軸孔與閥軸的配合情況,直接影響到活門的旋轉開啟動作是否靈活。為解決這一問題,采用在五坐標數控鏜銑床上用小直角銑頭走圓弧插補加工找正段,再單鏜閥軸軸孔的方法來實現,具體步驟為:①工件立放,地腳朝上,帶密封槽端法蘭面朝向鏜床,地腳下面墊方箱,背靠彎板,找正工件后將工件壓牢。②工件如圖1所示,先銑A端平面及內孔。③滑枕退回,移動立柱到C端,滑枕伸出同樣的長度,加工C端平面及內孔。④直角銑頭旋轉180°,用千分表測銑頭上的找正基準全長為零,鏜B端平面及內孔。⑤滑枕退回,移動立柱到D端,銑D端平面及內孔。

圖1 蝶閥閥軸軸孔加工示意圖
采用上述方案,可保證閥體閥軸軸孔的同軸度及軸孔端面的平面度符合圖樣要求,保證閥體加工精度。
(2)如何保證密封座與橡膠密封條的配合尺寸
中、小機組閥體密封面一般為堆焊不銹鋼結構。對于大中型機組,不宜采用,大堆焊量容易導致閥體焊接變形過大,加工精度不好控制。大型機組多采用把合密封座,再與閥體同加工密封面的方法。優點是加工后的密封面尺寸精度高;密封座為可更換件,磨損后易于更換。密封座上的把合孔難加工,要求分度準確,在數控立車上加工密封座。依靠數控立車卡盤的分度精度來保證把合孔的分度精度。密封座把合到閥體上后,數控編程加工密封面,保證密封面直線段與圓弧段的準確過渡。
2、活門加工工藝的研究
活門在全關位置時承受全部水壓,在全開位置,處在水流中心,因此要有足夠的強度和剛度,而且要有良好的水力性能。大、中型活門一般為中空殼體;铋T一般為鑄焊結構。加工難點如下。
(1)保證活門閥軸軸孔與蝶閥的閥軸、軸孔的同軸度
閥軸、軸孔的同軸度,工藝上采用同鏜的方法來實現。根據閥體、活門把合螺孔的位置,專門制作了一套固定工具用來把合閥體、活門,具體操作步驟如下(見圖2):①將閥體組合成整圓,用固定工具將閥體、活門分別通過閥體、活門上的把合螺孔把合在一起,用定位塊搭焊牢固。②將閥體、活門的組合體吊在鏜床工作臺上,按閥體上的一端軸孔平面及內孔找正工件后夾緊工件。③按閥體的閥軸、軸孔找正鏜桿,再單鏜活門閥軸軸孔,因閥體、活門閥軸軸孔找正基準相同,故兩閥軸軸孔同軸度好。

1.閥體 2.定位塊 3.固定工具 4.活門
圖2 閥體與活門加工圖
(2)保證把合螺孔的分度精度
在數控立車上加工把合螺孔,依靠數控立車卡盤的分度精度來保證把合螺孔的分度精度。
3、通用水壓工具的提制及水壓試驗的研究
閥體是承受水壓的部件,加工后應作水壓試驗。水壓試驗是檢驗蝶閥強度及水力性能的一項重要檢測手段。工藝提制閥體上、下法蘭悶頭及兩閥軸軸孔蓋板作為水壓試驗工具,與閥體把合后形成一個封閉的空間,在此空間內注入壓力水,在檢測時間內觀察蝶閥閥體的泄漏情況,對于大型蝶閥,水壓試驗蓋相對尺寸大,造價高,故提制水壓蓋時,將水壓試驗蓋作了改進,在每個水壓蓋上開了幾排螺孔,每個項目蝶閥打壓時,用不上的把合螺孔堵上。
4、立式裝配及操作試驗的研究
蝶閥試驗操作是蝶閥廠內試驗的重要項目,操作試驗的完成情況是決定蝶閥能否正常啟閉的關鍵,因大型蝶閥裝配尺寸高,裝配難度大。傳統的操作試驗是將蝶閥臥放,用起重機拉動轉臂重錘,觀察轉臂重錘的旋轉角度與活門旋轉角度之間的關系。這種方法接力器不參加操作試驗,無法保證接力器行程與轉臂重錘、活門之間的連接開啟動作一致,操作試驗可能成功完成,但在電站實際安裝過程中,卻無法保證接力器行程的問題。對大型蝶閥采用立式裝配及操作試驗,優點是試驗位置即為蝶閥的工作位置,試驗成功可保證蝶閥在工作過程中接力器行程、轉臂重錘與活門之間的開啟動作更和諧。但由于蝶閥尺寸大,裝配不便,根據這一情況,制訂了合理的裝配工藝,完全能順利地完成裝配工作。
5、具體工藝過程
(1)清理裝配平臺 在裝配平臺上放兩組等高方箱并找方箱水平,找正后將方箱壓牢在裝配平臺上。
(2)在大方箱上放置小方箱 保證兩組方箱之間的距離與蝶閥地腳支腿的距離相等。將方箱全部固定不可松動。
(3)兩個支承架放置到方箱的同側 用螺釘、壓板壓牢,下墊墊板。然后將支承架彎板安放在支承架上,測量兩彎板中心把合孔間距,符合要求后將彎板固定。
(4)閥體上劃線 通過閥軸中心劃水平、垂直中心線,劃重錘全關、全開位置線(在兩軸端面上、指示裝置底板上),盡量使其延長,以便于裝配過程中觀察。
(5)將閥體活門組合體翻轉90° 垂直吊放到裝配平臺的方箱上,對正彎板的把合孔用螺釘將閥體和彎板把合在一起,然后將組合體把緊、壓牢在方箱上。
(6)用小起重機吊另外兩個支承架至裝配平臺 平靠在閥體端面上,不允許超出軸頭端面,用螺釘、壓板將其固定在平臺上,支承架底部墊墊板。吊支承架彎板至支承架上,貼合閥體端面,對正把合孔擰上螺釘(與閥體和支承架)。
(7)在轉臂上劃出中心線并引至大孔外圓上 在全關位置裝轉臂重錘,按線對正后用搭焊板將轉臂與閥軸搭焊在一起,焊時注意不應使轉臂與閥軸有相對位置移動。
(8)劃定位銷孔加工線 用可移式鏜床鉆、擴、鉸定位銷孔并裝銷。
(9)裝銷后將搭焊塊磨平 端面及搭焊處磨平后裝壓蓋。
(10)鎖錠接力器裝配 打壓試驗完畢。
(11)鎖錠鉤壓瓦后檢查內徑尺寸合格 研配鎖錠鉤,按實際位置配鉆、攻把鎖錠接力器螺孔,裝接力器,將接力器與鎖錠鉤連在一起。
(12)接力器裝配完畢 運至總裝現場。
(13)按圖樣尺寸裝接力器和支座 注意先將支座裝于基礎板上,再裝在接力器上。全關位置調整后將基礎板固定在裝配平臺上。在裝配平臺上放置墊片,然后將接力器與轉臂裝在一起。
(14)割去活門、閥體上的搭焊拉筋。
(15)裝蝶閥操作接力器油管路系統 接力器內充油。
(16)用鎖錠接力器打開鎖錠鉤,操作蝶閥接力器作活門開關試驗,記錄油壓 按接力器行程鉆底板上的安裝孔,并裝刻度板及行程開關。配裝蝶閥指示裝置。在蝶閥全開位置劃定位銷孔加工線,吊可移式鏜床至裝配現場鉆、鏜定位銷孔。
(17)在設計油壓范圍內時,接力器能靈活操作活門開關。
(18)在全開位置,鎖錠接力器鎖錠重錘,逐步卸油壓,當主接力器油壓為零時,用起重機吊重錘,打開鎖錠鉤,緩慢落下重錘,做重錘自關閉試驗。
實際操作試驗過程中,完全能達到接力器行程與轉臂重錘及活門旋轉角度之間的聯系關系符合設計要求。具體蝶閥加工工藝如圖3所示。

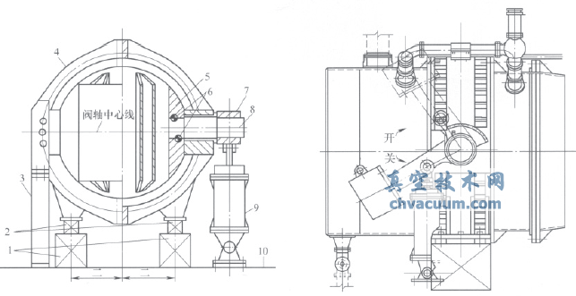
(a)蝶閥加工工藝 (b)轉臂重錘及活門旋轉角度
1.大方箱 2.小方箱 3.支撐架 4.閥體 5.閥體活門 6.定位銷 7.轉臂 8.轉臂中心線 9.接力器10.裝配平臺
圖3 蝶閥加工工藝圖
四、結語
實踐證明,蝶閥廠內立式裝配及操作試驗是整個蝶閥生產制造過程中不可缺少的一部分,它除了要完成必要的技術指標外還可以檢驗出設計、制造過程中各種不合理因素,并及時修正過來。為用戶提供保質、保量,滿意的產品。通過對蝶閥閥體、活門加工和水壓試驗工具制造工藝分析研究,目的是對蝶閥設計、制造、試驗有個總體認識和歸納總結,為我國在新世紀生產大型蝶閥奠定扎實的工藝基礎。