大口徑雙向密封固定球球閥的閥座結構分析與設計

2014-11-18 李鐵東 浙江力諾流體控制科技股份有限公司

  分析了石油和天然氣管線用固定球球閥閥座的結構特點和性能,介紹了一種大口徑雙向密封固定球球閥的閥座優化設計。

1、概述

  在長輸管線輸送系統中,對管線球閥的性能等要求相當嚴格,如要求具有防火、防靜電、防爆和0泄漏等。為了確保球閥閥座密封達到0 泄漏,根據API 6D 標準閥座結構的原理,對閥門設計了多種復合型閥座結構,本文介紹一種新型大口徑固定球球閥雙向密封閥座的結構。

2、閥座結構

  根據API 6D 標準提出的雙阻塞與泄壓(DBB)和雙隔離與泄壓(DIB-1 和DIB-2) 的閥座結構原理,閥座結構有單活塞效應、雙活塞效應和組合型3 種。

  (1) 雙阻塞與泄壓閥座

  雙阻塞與泄壓閥座( DBB) 即單活塞效應閥座是自泄壓閥座結構,介質進口端和出口端閥座結構一致,它是閥前閥座密封原理,介質可以雙向流動。DBB 閥座有雙密封閥座( 圖1) 和單密封閥座( 圖2) 兩種結構。雙密封閥座是由兩個能夠單獨實現閥座密封的非金屬材料組合而成,在介質壓力作用下,初級閥座支撐座上產生的△A1環形面積差的壓力加上彈簧力,確保初級閥座和球體形成密封副。當初級閥座密封失效后,介質通過初級閥座到達次級閥座,在次級閥座支撐座上產生的△A1 '環形面積差的壓力加上彈簧力,確保次級閥座和球體形成密封副。這種閥座結構能夠在閥腔內的介質壓力達到公稱壓力的1.33 倍時,推開介質出口端次級閥座支撐座,使介質壓力到達初級閥座,介質再推開介質出口端初級閥座支撐座,使閥門的介質壓力泄放到出口端,保障了閥門體腔內壓力不過載。

雙密封的雙阻塞與泄壓閥座

1. 初級閥座支撐座 2. 初級閥座(尼龍) 3. 次級閥座( 氟橡膠)  4. 次級閥座支撐座 5. 球體

圖1 雙密封的雙阻塞與泄壓閥座(DBB)

  (2) 雙隔離與泄壓閥座

  雙隔離與泄壓閥座( DIB-1) 即雙活塞效應閥座,介質進口端和出口端閥座結構一致,其閥前閥座和閥后閥座都能夠實現密封,介質可以雙向流動。DIB-1 閥座有雙密封閥座( 圖3) 和單密封閥座( 圖4) 兩種結構。雙密封閥座由兩個能夠單獨實現閥座密封的非金屬材料組合而成。在介質進口端,初級閥座支撐座上產生的△A1環形面積差的壓力加上彈簧力,確保初級閥座和球體形成密封副。當初級閥座密封失效后,介質通過初級閥座到達次級閥座,在次級閥座支撐座上產生的△A1 '環形面積差的壓力加上彈簧力,確保次級閥座和球體形成密封副。

  當進口端雙重閥座密封全部失效后,介質進入閥腔,到達出口端閥座,在次級閥座支撐座上產生的△A2環形面積差的壓力加上彈簧力,確保次級閥座和球體形成密封副。當次級閥座密封失效,介質壓力到達出口端初級閥座,介質推開初級閥座支撐座,介質進入出口端,不能形成密封副。所以,雙密封閥座在出口端僅為一重閥座密封,是三重閥座密封。由于雙活塞效應閥座在閥腔異常升壓時,進出口兩端次級閥座都能夠與球體形成密封副,所以體腔內超標的介質壓力不能泄放,不具備閥腔自泄壓功能。因此,閥門需要在閥體上安裝自動泄壓閥,在閥腔壓力達到公稱壓力的1. 33 倍時,可通過自動泄壓閥釋放閥腔內過高壓力。

單密封的的雙阻塞與泄壓閥座

圖2 單密封的的雙阻塞與泄壓閥座(DBB)

  (3) 組合的雙隔離與泄壓閥座

  組合的雙隔離與泄壓閥座( DIB-2) 是結合雙阻塞與泄壓和雙隔離與泄壓結構的優點,介質進口端使用DBB 閥座,介質出口端采用DIB-1 閥座。組合的雙隔離與泄壓閥座為介質單向流動,進出口兩端雙向密封。DIB-2 結構是三重閥座密封。當體腔壓力達到公稱壓力的1.33 倍時,體腔內介質推開進口端次級閥座支撐座和初級閥座支撐座脫離球體,閥腔內的壓力向介質進口端自動泄放,確保閥門安全。

3、分析

  (1) DBB 閥座的主要優點是自泄壓,介質未排放到閥門外,不會增加石油和天然氣等易燃易爆介質泄漏造成的危害。但是,單密封閥座僅為進口端一重密封,雙密封閥座也僅僅為進口端二重密封。雖然閥座密封可以達到0 泄漏,但很難滿足長輸管道苛刻工況的要求。

  (2) DIB-1 閥座密封壽命長,基本滿足長輸管道的苛刻工況。但DIB-1 閥座的閥腔不具備自泄壓功能,需要在閥體上安裝自泄壓安全閥,增加了閥門的泄漏點。如果泄壓安全閥失效,閥腔異常升壓帶來的危險無法預估。一般來說,在石油和天然氣長輸管道上使用較少。

雙密封的雙隔離與泄壓閥座

圖3 雙密封的雙隔離與泄壓閥座(DIB-1)

單密封的雙隔離與泄壓閥座

圖4 單密封的雙隔離與泄壓閥座(DIB-1)

  (3) DIB-2 閥座綜合了DBB 和DIB-1 結構的優點,是石油和天然氣長輸管道系統中,優先選擇的閥座密封結構。DIB-2 閥座結構比較復雜,零件較多,造成零件尺寸精度較難控制,零件的強度和剛度較差,初級和次級閥座之間距離較大,要保證兩個閥座和球體都達到密封,要增大球體的直徑,從而增加閥門的操作扭矩和原材料成本。故真空技術網(http://www.hzwlsy.com/)認為DIB - 2 閥座應用不廣泛。

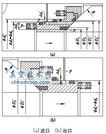
4、優化設計

  經過對DBB、DIB-1 和DIB-2 閥座結構的分析和研究,對大口徑管線固定球球閥的閥座結構進行了優化設計。新閥座為雙向雙重密封,介質單向流動,進出口端雙重密封( 四重密封) ,初級閥座和次級閥座共用一個閥座支撐座,兩個閥座相鄰,結構簡單,密封可靠,零件受力良好,確保閥座0 泄漏,增加了閥座密封壽命( 圖5) 。

優化閥座

圖5 優化閥座( DIB-2)

5、結語

  閥座密封寬度對密封副的結構應力和密封性能均有很大的影響。隨著密封寬度的增大,密封副所受的應力和應變均增大,密封面所受的等效應力和接觸應力也增大,使密封性能提高,但隨之也導致了密封面上摩擦應力的增大,使密封圈的使用壽命縮短,因此,還應采取措施減小摩擦應力,延長密封圈的使用壽命。