輸送硅粉用耐磨旋盤閥
1、概述
當前晶體硅(包括多晶硅和單晶硅)是電子行業和太陽能(光伏)行業的主要材料,而且今后相當長的時期也依然是這些行業的主材料。多晶硅行業的生產設備主要是由反應塔器罐釜和管道組成的系統裝置,閥門是必備的控制元件。但由于其核心裝置的工藝條件具有臨氫、耐磨、高溫(300~400℃)、中高壓(2.5~10MPa)、易燃和易爆的特點,其核心部位控制和輸送介質的閥門常用高溫金屬密封耐磨球閥。根據生產需要,研究了一種結構新穎的耐磨旋盤閥(也稱圓盤閥),在硅粉輸送管道、料倉和反應釜的底部得到應用。該閥已獲國家專利,專利號ZL201120024895.4。
2、結構特點
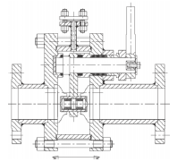
多晶硅行業用的旋盤閥(圖1)密封副采用整體高硬度材料或高硬度涂層,使其硬度高于輸送物料的硬度。如采用碳化鎢(WC)或碳化鉻(CrC)等,其硬度均超過硅粉顆粒的硬度。閥門在管道上安裝基本采用單向密封,密封達到零泄漏,至少達到ANSIClassⅥ泄漏等級。

圖1 旋盤閥

圖2 擺動型旋盤閥
旋盤閥具有獨特的旋轉剪切和自拋光的閥盤,耐磨損、耐高溫和高硬度的配對密封副,雙作用的驅動桿旋轉執行裝置,補償管道應力和閥件熱膨脹的彈性機構,以及防止物料集結和堵塞的自排及刮削功能。
旋盤閥按結構可分為單盤式、雙盤式和鎖盤式等。根據動作原理可以有直行程滑閥型和帶擺動搖臂的擺動型(圖2)。無論是直行程或擺動型結構,都是用閥盤實現通道的開啟和關閉動作,控制磨料介質的輸送。運動的閥盤和鑲嵌的閥座一般采用整體硬質合金壓制燒結的材料(YG8、YG15),其硬度≥70HRC。
3、性能
旋盤閥的工況條件是高溫、高壓、磨損、氧化和氫脆腐蝕,要求其密封性能好,啟閉力矩小。旋盤閥壓力150~2500Lb,口徑1~16in.(25~400mm),溫度<400℃,主體材料碳鋼A105或奧氏體不銹鋼316(CF8M)。旋盤閥作為反應釜出料閥或氣流輸送閥時,其啟閉動作頻率較高,每天6~30次。
4、工藝特點
旋盤閥的閥座與閥體結合是影響閥座背面密封和結合可靠的關鍵問題。如采用過盈配合及化學方法固定閥座,使用中出現了閥座松脫和背面泄漏現象。經過試驗,改進為機械連接的壓焊方法,保證了閥座固定穩固和背面的密封效果,提高了閥門的使用可靠性。為了保證密封面的平整度和光潔度,及密封副之間的平行度和吻合度,密封副的兩個密封面要經過粗磨、精磨和研磨,最后還要進行配對的對研和拋光,使密封面達到鏡面水平,才能滿足金屬硬密封零泄漏的要求。
多晶硅生產工藝中用于輸送氫氣和氧氣的閥門約50%。為了保證系統設備運行的安全可靠,閥門的脫脂處理工序非常重要。因此按照GB16912-2008、HG20202-2000及JB/T10520-2005標準,對脫脂流程、脫脂劑選用、脫脂方法、安全防護及驗收標準做出全面的規定,作為現場操作的指導和檢驗依據。閥門采用銅合金或奧氏體不銹鋼以外的碳鋼時,考慮了其脫脂處理后的防銹和包裝問題,以防止閥門在運輸過程和安裝前會產生表面銹蝕。
5、國外進展
美國Everlasting公司從1904年開始研究處理硅粉輸送閥門,旋盤閥是其主導產品之一。目前,國外的旋盤閥壓力Class2500,公稱尺寸NPS1/2~18in.(15~450mm),溫度800℃,壓力70MPa。國外對大口徑閥門的密封部位采用碳化鎢包鍍技術(TheConformaClad),可以簡化硬質合金的整體壓制和燒結工藝,節約耐磨和耐蝕合金材料的用量,降低產品成本,在國內的大口徑閥門密封材料應用上具有廣闊的推廣應用價值。
6、結語
旋盤閥耐磨損、耐氧化和耐氫脆腐蝕,用于高磨損和沖蝕物料的隔斷及氣-固兩相流的管道上,密封性能好,啟閉力矩小,有著廣闊的應用市場。