防火排煙閥全自動執行機構研發
研發一種安裝在高層建筑、大型船舶、核電站等通風系統的防火排煙閥體中,用于對防火排煙閥體進行開啟或關閉的全自動執行機構。該機構復位由電機通過全齒輪傳動組帶動主軸旋轉90°,使閥門復位到原始狀態;可用電動、手動或溫感器驅動機構動作,主軸逆時針旋轉90°,使閥門打開或關閉,同時輸出打開或關閉信號,輸出的信號可以與通風系統中的風機聯動,從而使通風系統實現防火和排煙的功能。
一、引言
隨著國家對安全的重視,各種安全規范陸續出臺,各種高層、船舶、核電、軍工、地鐵、化工等建筑必須安裝防火設備,防火排煙閥是安防設備中重要的組成部分。防火排煙閥的關鍵點是可靠性,特別是能自動開關且帶有手動和溫控動作的防火排煙閥(防火排煙閥有手動、半自動和全自動三種類型),而執行機構又是防火排煙閥的主要部件,一臺閥門的可靠性如何,關鍵在于執行機構。本文介紹防火排煙閥全自動執行機構。
二、研究目標
研究開發一種安裝在高層建筑、大型船舶、核電站等通風系統的防火排煙閥體中,用于對防火排煙閥體進行開啟或關閉的全自動執行機構。該機構復位由電機通過全齒輪傳動組帶動主軸旋轉90°,使閥門復位到原始狀態;機構動作時,可用電動、手動或溫感器動作使機構動作,主軸逆時針旋轉90°,使閥門打開或關閉,同時輸出打開或關閉信號,輸出的信號也可以與通風系統中的風機聯動,從而使系統通風系統實現防火和排煙的功能。
三、總體設計
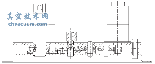
機構主體包括齒輪傳動組、底板、安裝面板、主軸組件、主軸定位裝置、電磁鐵驅動以及電器元件等,齒輪傳動組如圖1所示。由4個等高套將底板和安裝面板形成齒輪箱,齒輪傳動組由4組嚙合齒輪系組成,其中還包括三個齒輪安裝軸和一根主軸。主軸為空心管,用來連接機構與閥門葉片主軸,主軸上固定扇形齒輪、凸輪。由電機通過齒輪傳動組帶動主軸旋轉,當擺架上的滾子嵌入凸輪的缺口中時主軸停止轉動,為了給主軸在電機不通電的情況下逆時針旋轉提供空間,在主軸停止旋轉后,電機反轉。為了使電機反轉時不帶動主軸旋轉,采取的方案是:輸出動輪與輸出齒輪裝配在輸出軸上,在輸出齒輪上開有扇形腰孔槽,在輸出動輪上裝配有動輪銷與扇形腰孔槽配合,電機齒輪與輸出動輪嚙合。電機正轉時,由輸出動輪帶動輸出齒輪旋轉,從而帶動主軸旋轉;當電機反轉時,動輪銷在扇形腰孔槽內滑動而不帶動輸出齒輪旋轉,從而使電機反轉時不帶動主軸旋轉,這樣就為電機不通電的情況下主軸逆時針旋轉提供了空間。輸出動輪與輸出齒輪配合結構如圖2所示。

圖1 齒輪傳動組

圖2 輸出動輪與輸出齒輪配合結構
電機的啟動與停止由安裝在安裝面板上的微動開關控制。主軸的旋轉角度為90°,分別通過擋柱定位以及擺架上的滾子嵌入凸輪缺口定位控制主軸的旋轉角度。
四、原理分析
機構復位時,給電機通電,電機通過齒輪組帶動主軸順時針旋轉,使閥門復位到原始狀態,當擺架上的滾子嵌入凸輪的缺口中時,擺桿將擺架卡住,使主軸定位并停止旋轉,此時主軸的旋轉角度為90°,然后電機反轉至微動開關合上,電機自動斷電停止。機構動作時,給電磁鐵通電、電磁鐵芯拉動擺桿,使擺架與擺桿脫開,在主軸扭簧扭矩的作用下,凸輪缺口滑出擺架上的滾子,主軸逆時針旋轉90°,使閥門打開或關閉。機構動作時,也可以采用手動或溫感器動作的方式拉動擺桿使機構動作,打開或關閉閥門。
五、設計計算
初步選定電機規格為:轉速36轉/分,輸出扭矩50N•cm,4組嚙合齒輪傳動比分別為:40/80、21/74、33/48、17/52,主軸盤簧最大工作扭矩15N•m。
(一)執行機構主軸轉速計算:
V=36×40/80×21/74×33/48×17/52=1.15轉/分=6.9°/秒
(二)執行機構主軸旋轉90°所需時間計算:
t=90/6.9=13.1秒
(三)執行機構理論復位時間計算
T=2t=26.2秒
(四)負載后執行機構實際復位時間計算實際工作中,電機負載后的實際轉速為30轉/分,因此機構的實際復位時間為:
T(實際)=36/30×26.2=31.5秒
(五)執行機構主軸輸出扭矩(即電機在帶動主軸旋轉時產生的扭矩)計算
P=50/(40/80×21/74×33/48×17/52)/100=15.7N•m
大于主軸盤簧的最大工作扭矩,可以帶動主軸。
六、結論
研發的防火排煙閥全自動執行機構采用全齒輪傳動,解決了在動作復位過程中,主軸無法回彈的問題,傳動、復位阻力小,動作迅速性能穩定,在通電情況下,能夠自動使閥門自動復位、自動動作,同時,溫感器動作也能使閥門動作,從而實現溫度控制閥門的功能。本產品功能齊全,適用于各種復雜的環境;穩定性高,確保在火災發生時,防火排煙閥門及時動作,起到防火排煙的作用,有效的減少火災造成的損失。另外本產品所有傳動件及電器元件都安裝在罩殼內,使該產品具有良好的密封性能,特別適宜在有防水、防霧要求的建筑和各種設備上使用。