馬鋼2250熱軋高壓水除鱗閥的改進
高壓水除鱗閥主要用于冶金系統軋鋼生產線高壓水除鱗系統,文中詳細介紹了原廠安裝的德國DR.BREIT除鱗閥的基本結構,并分析了該結構的特點,在此基礎上對其閥體結構進行改進,最后講述了該閥的使用和檢修時的注意事項。
除鱗閥主要用于冶金行業熱軋除鱗系統,安裝在除鱗系統的控制終端,在控制系統氣源壓力的作用下,閥門處于常閉狀態。當鋼板或鋼坯進入預定工位,控制系統得到除鱗信號,二位五通電磁閥得電換向,閥門打開,除鱗系統開始噴射高壓水,除去鋼坯表面氧化皮。當鋼板或鋼坯離開預定工位,控制系統得到結束除鱗信號,二位五通電磁閥斷電換向,閥門關閉,除鱗系統停止噴射高壓水,除鱗結束。除鱗閥要求壽命長、抗污染能力強、密封性好、動作靈活可靠。
1、DR.BREIT除鱗閥基本結構
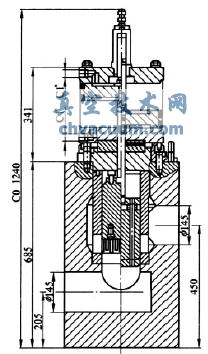
除鱗噴射閥主要由主閥、驅動部分和控制部分組成。德國DR.BREIT除鱗閥主閥為閥瓣截止式低進高出結構(見圖一),主要包括閥芯、閥套、閥座、閥桿及密封件;驅動部分采用雙作用氣缸,主要由氣缸、活塞、氣缸上蓋、氣缸下蓋等組成;控制部分采用氣動控制,主要由氣動三聯件、單向節流閥、二位五通電磁閥等元件組成。

2、DR.BREIT除鱗閥工作原理
DR.BREIT除鱗閥工作原理如圖2所示。
閥關閉時壓縮空氣通過5/2通電磁換向閥(失電狀態)進入主閥氣缸上部,同時將氣缸下部的空氣排出,將主閥芯向閥座位(向下)推動,主閥關閉。
閥開啟時氣動5/2通電磁換向閥得電時并換向至使壓縮空氣進入主閥氣缸下部同時將氣缸上部的空氣排出,將主閥芯向上推動離開閥座位,主閥開啟。

圖2 DR.BREIT除鱗閥工作原理
3、DR.BREIT除鱗閥特點
DR.BREIT除鱗閥主閥的閥芯為鍛造的圓柱形實心體,向下運行時關閉,向上運行時打開,由于通過一個三通控制閥使高壓水到達氣缸上部的一個平衡腔,形成平衡作用,使得該閥快速打開和相對性的慢速關閉易于實現;同時該閥的開關過程依靠閥芯與閥座之間密封的嚴密程度來保證。由于其閥口密封采用軟密封形式,對水質的純凈度有著比較高的要求且易受雜質損害,而且密封在閥芯上,受壓后外凸,在開關過程中時易蹭磨受損,一旦損傷,滲漏的高壓水會很快通過氣蝕和沖刷作用侵蝕掉其后的閥芯和閥套,造成閥門失效。
4、DR.BREIT除鱗閥的改進
由于該閥的自身結構限制,國內水質使用條件(濁環水)無法滿足其工作性能要求,造成其密封件損壞、閥芯和閥套沖蝕嚴重,壽命差,導致備件量大、維修費用高,為此我們對其結構進行了改進,改進后閥芯閥套結構圖如圖3所示。

圖3 改進后閥芯閥套結構圖
首先,將其閥瓣截止式低進高出結構改為柱塞升降式低進高出結構,即閥芯由實心體改為非實心形式(類似于帶端蓋的閥套)從而改變高壓水通流方式;其次,閥內密封由安裝在閥芯上改為安裝在閥套上,這樣可以延長密封使用,降低高壓水對閥體的侵蝕程度;同時柱塞上通水槽錯落布置,使得閥門啟閉時水流通過時是漸變的,從而可以減輕甚至是消除“水錘”現象。
5、改進效果
(1)閥動作靈活,運行穩定,減少了水流沖擊,同時沒有發現明顯水錘現象。
(2)密封使用壽命明顯延長,原先兩周換一次,現在平均一個月才換一次。
(3)閥芯壽命延長,閥芯、閥套沖刷痕跡明顯減輕。
6 使用和檢修注意事項
噴射閥在使用前首先保證閥前管道內無施工遺留物如:焊渣、焊條頭、氣焊切割物及其他雜物。閥平衡缸的三通控制閥應保證在開啟狀態。壓縮空氣大于0.5MPa,氣動三聯件油霧器供油正常。
在除鱗閥工作時注意觀察閥的動作是否靈活準確、有無向外漏水、漏氣,閥內有無竄水等現象。在系統高壓狀態除鱗閥在關閉時發現有竄水現象應在最近的一個檢修時間段內及時更換閥芯密封(有條件時應及時處理),以防將閥芯及閥套沖刷壞。
手動閥在進行開啟或關閉的操作時應隨時注意閥門的狀態指示器所顯示的位置,當顯示器接近閥門開啟或關閉的位置時,應緩慢扳動閥門手輪直至將閥門關閉或打開。嚴禁依靠閥門手輪的慣性將閥門開啟或關閉。
閥解體后可根據閥在運行時檢查到的問題有針對性地重點檢查相關的密封件、支承環等與此同時對閥的所有部件都進行細致的檢查,檢查其磨損程度、密封面是否有被高壓水沖刷的溝槽或被雜物拉損的痕跡,視其損壞程度決定是否更換。安裝前在合套閥的零部件時要注意保護閥套、閥芯、閥桿的各部不得有劃傷、磕碰,因閥的密封件為軟材質,所以在安裝時要特別的注意防止劃傷、磕碰,即使小的損壞也會造成閥在高壓運行時竄水,從而影響閥芯密封的使用壽命,進而損壞閥芯閥套。除鱗閥在安裝時其各部密封件、支承環及其他零件必須正確安裝到位,對閥蓋、閥套的O型圈在裝入閥體時要注意保護防止閥體口的邊緣將其剪切造成損壞,必要時在O圈處涂潤滑劑。
整臺閥安裝完畢后進行低壓水實驗,閥在開閉時動作平穩無阻滯,若檢測閥芯是否竄水,應將預充水手動閥關閉,除鱗閥在關閉位,看閥管道上的流量開關有無流量通過,若此時如顯示有流量通過則表明除鱗閥關閉不嚴,需重新將閥解體檢查并排除問題。