磁控濺射靶磁場的有限元模擬分析

2014-09-05 朱武 合肥工業大學真空科學技術與裝備研究所

  磁控濺射靶面磁感應強度的水平分布直接關系到靶材的利用率和刻蝕的均勻性,為了尋求更好的磁控靶結構參數,從而實現靶面水平磁感應強度的均勻分布,本文應用COMSOL 軟件對JGP450C型磁控濺射鍍膜機的圓平面靶表面磁感應強度進行了模擬分析計算,得到了靶面水平磁感應強度較強、分布較均勻的磁鐵結構參數。

  平面磁控濺射由于其廣域沉積和濺射速率高等優點被廣泛應用于工業生產和科學研究中。在磁控濺射系統中,通常應用一個永磁場來約束靶面附近的電子運動,該磁場直接關系到成膜的質量和成膜速率,因此對磁控靶的研究成為關注的焦點。由于磁場的控制,等離子體被限制在靶材表面的一定區域內,靶面被非均勻刻蝕,這樣造成靶材利用率很低。而提高靶材利用率的關鍵是調整磁場結構,使等離子體存在于更大的靶面范圍,實現靶面的均勻濺射。如何提高靶材利用率、如何提高鍍膜的均勻性是研究人員特別關心的問題。以前的研究都是通過實物靶實驗的方法來改進靶的性能,存在研究費用高、研究周期長等問題,在很大程度上制約了磁控靶的發展。

  隨著計算機技術以及相關應用軟件的開發,實物實驗逐漸被計算機模擬所替代。本文基于comsol軟件,模擬圓平面磁控靶表面的磁感應強度,具體分析不同磁鐵結構參數下靶面的磁場分布及其對水平磁感應強度的影響,進而對靶進行優化設計。磁控濺射的磁場是由磁路結構和永磁體的剩磁所決定,并最終表現為陰極靶材表面的磁場強度B 的大小和分布。對于磁控濺射靶來說,真空技術網(http://www.hzwlsy.com/)認為靶表面的磁感應強度B 對放電等離子體的影響較大,特別是水平磁感應強度Bx 及其大小和分布,更是磁控濺射中一個極其重要的參數。

1、靶結構和磁場分析

  研究分析認為:一般要求平面磁控濺射靶表面最大水平磁通密度范圍是:20 mT~40 mT,最佳值為30 mT。對磁場的分布分析和計算優化選用了軟件Comsol。JGP450C 型磁控濺射鍍膜機陰極濺射靶結構如圖1,CAD 簡化物理模型如圖2。圖2 中靶磁場是由高度為10 mm 的內磁柱和高度為12 mm的外磁環圍成的磁鐵結構產生的,其各部件的材料、尺寸、參數如表1 所示。

磁控濺射靶的結構示意圖

1.壓蓋;2.磁環;3.靶材;4.銅背板;5.磁柱;6.屏蔽罩;7.屏蔽套;8.磁軛

圖1 磁控濺射靶的結構示意圖

CAD 簡化物理模型

圖2 CAD 簡化物理模型

表1 磁控濺射靶不同部件的材料,尺寸,參數

磁控濺射靶不同部件的材料,尺寸,參數

  靶磁場的分析可以分為以下幾個步驟:(1)創建物理環境: 進入軟件comsol 3.5a 界面中comsol Multiphysics 中電磁下的靜磁,選擇進入,準備畫二維靜態磁場結構;(2) 建立模型后,對各個部件進行定義,設定求解域和邊界條件,劃分網格,求解,然后進入后處理環境;(3)求解后磁力線分布圖,表面磁通密度等。如圖3~圖6所示。

磁控濺射靶磁場的有限元模擬分析

圖3 12-10-12 劃分網格后的磁鐵模型圖  圖4 12-10-12 磁場流線圈

磁控濺射靶磁場的有限元模擬分析

圖5 12-10-12 2D 表面磁通密度圖  圖6 12-10-12 3D 表面磁通密度圖

2、靶磁場模擬分析結果與討論

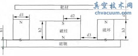
  由于選取的磁控靶靶材壓蓋和銅背板都是非導磁材料,其導磁率幾乎等于1,與空氣相差不大, 因此可以忽略材料對磁感應強度的影響,簡化后的物理模型以及一些結構參數如圖7 所示,由靶材、磁鋼(包括磁柱,磁環)和磁軛構成。下面通過改變模型上的一些結構參數來研究水平磁場的變化規律,以尋求更好的磁控靶的結構參數,從而實現靶表面磁感應強度的均勻分布。

磁控濺射靶的簡化物理模型截面圖

d1:磁環寬度;d2:磁柱半徑;d3:磁柱與磁環的間距;d4:磁環與靶材的間距;h1:磁軛厚度;h2:磁柱高度;h3:磁環高度

圖7 磁控濺射靶的簡化物理模型截面圖

2.1、平衡場與非平衡場的對比分析

  這里首先開展平衡與非平衡磁場的簡單對比,以表2 所示的3 組數據來說明。

表2 平衡與非平衡磁場數據對比

平衡與非平衡磁場數據對比

  圖8 所示3 條曲線從上至下分別對應h2=8,10,12 mm,依次定義為線1,2,3。圖中,縱坐標表示水平磁感應強度(T),橫坐標表示離開靶材左端1/4 處往右的尺寸(0~30 mm),以下各圖類似。對比1,2,3 各磁場流線,我們可以看出:在選用剩磁量相同的永磁鐵作為磁控濺射靶的磁極且內外磁極等高時,很明顯磁力線的分布比較均勻,磁力線基本是閉合的;而當內外磁鐵的高度不同時,磁力線會出現向外輻射,這就增強了磁控濺射靶工作區間的磁通量密度,進而約束了大量的粒子分布在工作區域,擴大了等離子區域的寬度,提高了鍍膜的性能。這正是目前磁控濺射鍍膜的發展方向。與此同時,我們也可以從水平磁感應強度曲線看到,磁感應強度隨著磁鐵高度的增加而增加;線2 是等高內外磁極的平行磁感應強度, 其最高的磁感應強度是0.032 T,而且相對于線1 和線3,其左右均勻性更好,磁場的分布基本對稱。這也就是平衡磁場的特點。通過對比,我們還可以看出,內磁極比外磁極低,磁場的分布均勻性較好,而且最大水平磁感應強度在30 mT 附近。所以在磁控濺射靶的磁鐵結構中,我們一般選取內磁柱低于外磁環的排布方式。

三組數據水平磁感應強度對比圖

圖8 三組數據水平磁感應強度對比圖

2.2、不同磁軛厚度對磁場的影響

  當其他參數一定時,改變磁軛厚度,考慮其對磁場的影響。經過多次模擬計算分析,取h1=4,6,8mm 時,其相應的曲線變化如圖9(三線基本重合)。

不同磁軛厚度下水平磁感應強度對比圖

圖9 不同磁軛厚度下水平磁感應強度對比圖

  對比各磁場流線可知,隨著磁軛厚度的增加,對靶材表面的水平磁感應強度分布的均勻性幾乎沒有影響,但是磁鐵之間的回流性卻變好了。從圖9 可以看出,不同磁軛厚度對應的水平磁感應強度曲線幾乎重合在一起,故不同磁軛厚度對水平磁感應強度也沒有影響,考慮整個濺射靶的結構尺寸,我們選取磁軛的厚度為h1=6 mm。

2.3、靶材與磁環間距對磁場的影響

  選取磁環高度h1=12 mm, 內磁柱高度h2=10 mm,內磁柱半徑d2=10 mm,來研究靶材與磁環的間距(d4)變化對靶面的水平磁感應強度的影響。當d4=2.5,2.6,2.7,2.8,2.9,3.0 mm 時,模擬得到的水平磁感應強度曲線如圖10 所示。

  從圖中可以看出,隨著d4 的增加,靶材表面的最大水平磁感應強度隨之減少,但對靶材表面的水平磁感應強度分布的均勻性幾乎沒有影響;且隨著間距的增加,靶面最大水平磁感應強度的位置也有所偏移。考慮到最優水平最大磁感應強度范圍是20~40 mT,故而選取d4=3 mm。

 靶材與磁環不同間距下水平磁感應強度對比圖

圖10 靶材與磁環不同間距下水平磁感應強度對比圖

2.4、磁環高度對磁場的影響

  有關研究表明,內外磁鋼高度變化對于薄膜宏觀形貌的影響并不大。當靶材與磁環的間距d4=3 mm,內磁柱半徑d2=10 mm,內磁柱高度h2=10 mm 時,考慮磁環的高度(h3)變化對靶面的水平磁感應強度的影響。給定磁環高度變化為h1=12,16,20,24 mm,模擬得到相對應的磁場流線和水平磁感應強度曲線分布如圖11 所示(自下至上對應)。可以看出,隨著磁環高度的增加,靶材表面最大水平磁感應強度也增大,且增加的幅度逐漸增大,但對靶材表面的水平磁感應強度分布的均勻性沒太大影響。注意到在h3=16~20 mm 時,最大水平磁感應強度最接近最佳值30 mT,故而選取h3=16 mm。

2.5、導磁片長度對磁場的影響

  為了增加均磁效果,通常選擇在銅背板上加裝導磁片,導磁片一般選用高導磁率的材料,它能夠改變靶材表面的磁力線分布,增加靶材表面水平磁感應強度分布的均勻性。加導磁片后的簡化物理模型如圖12 所示。

不同磁環高度下水平磁感應強度對比圖

圖11 不同磁環高度下水平磁感應強度對比圖

加裝導磁片的磁控濺射靶的簡化物理模型

圖12 加裝導磁片的磁控濺射靶的簡化物理模型

  有無導磁片情況下的靶面磁力線分布對比,如圖13 所示。由圖可知,加裝導磁片后,磁力線水平區域增加,均磁效果明顯。

有無導磁片靶面的磁力線分布

圖13 有無導磁片靶面的磁力線分布

  當磁鐵其他結構參數不變時,我們改變導磁片長度(L)觀察其對磁場的影響,給定導磁片長度L=1,3,5,7 mm 時,模擬得到其相應的磁場流線和水平磁感應強度曲線如圖14 所示(自上至下對應)。由兩圖可知,隨著導磁片長度增加,最大水平磁感應強度分布均勻性增加,但是其最大水平磁感應強度卻減小,且當L=3,5 mm 時,其水平磁感應強度最接近最優值。故此,我們可以選擇導磁片長度L=5 mm。

2.6、其他結構參數對磁場的影響

  類似上述,我們還研究了內磁柱半徑、內磁柱高度、磁柱與磁環間距等結構參數對磁場的影響,分別得到:內磁柱半徑d2=12 mm,內磁柱高度h2=10 mm,磁柱與磁環間距d3=8 mm。

不同長度導磁片下水平磁感應強度對比圖

圖14 不同長度導磁片下水平磁感應強度對比圖

3、結束語

  本文借助comsol 軟件建立起了磁控濺射靶磁鐵的物理模型,并對每個構件的參數和材料進行了定義與選擇;通過對磁場的模擬分析,明確了磁鐵結構參數對靶材平行磁場分布規律的影響;最后根據模擬結果確定了磁控濺射靶的主要結構參數:磁軛厚度h1=6 mm,磁柱高度h2=10 mm,磁環高度h3=16 mm,磁環寬度d1=10 mm,磁柱半徑d2=12 mm,磁柱與磁環間距d3=8 mm,靶材與磁環間距d4=3 mm。

  本文所得到的結論,包括磁控濺射靶的主要結構參數、合理選擇導磁片長度、平衡磁場和非平衡磁場的區別等,雖是由comsol 軟件模擬得出的,但它卻具有指導意義。對模擬結果與實驗數據進行綜合分析,必將有益于磁控濺射靶的優化設計。